Vendu

Grenoble (38100) Appartement Grenoble T2 29,38 m²

Réf : 062636 53 000 €
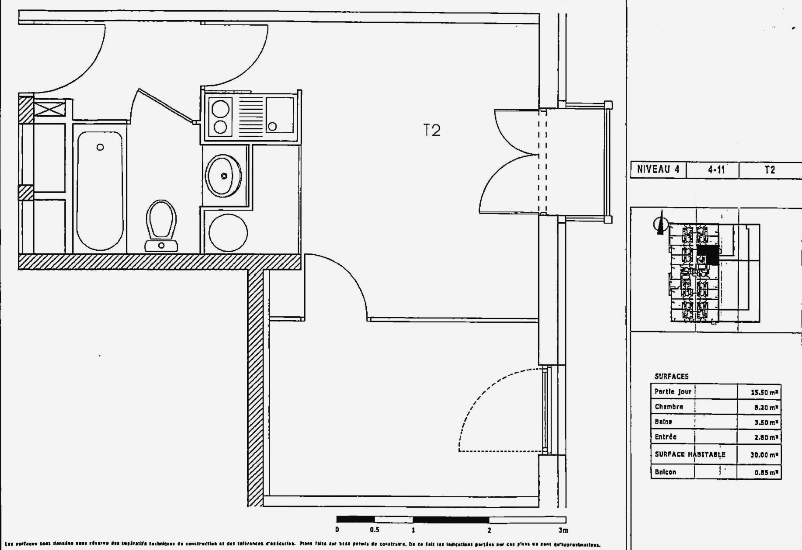
Votre agence 4% Immobilier Eybens vous propose à la vente un T2 loué en LMNP (location meublée non professionnelle) avec un loyer annuel garanti de 2937 €. Résidence Appartéa Grenoble, rue Maurice Dodero, exploitée par Goelia. Bail commercial jusqu'à fin septembre 2025. L'appartement se compose d'une entrée, d'un séjour avec kitchenette équipée, d'une chambre et d'une salle de bains avec baignoire et WC. Balcon.
TRAD_SIROCCO_Caracteristique Valeurs
Code postal 38100
Surface habitable (m²) 29,38 m²
Surface loi Carrez (m²) 29,38 m²
Nombre de pièces 2
Etage 4
TRAD_SIROCCO_Caracteristique Valeurs
Année de construction 2007
TRAD_SIROCCO_Caracteristique Valeurs
Prix de vente 53 000 €
Les honoraires d'agence seront intégralement à la charge du vendeur  
Charges 69 €
Taxe foncière annuelle 350 €
DPE GES
DPE ANCIENNE VERSION
  • Commerces et santé
  • Loisirs
  • Ecoles
  • Transports
  • Pratique

Nos outils

Imprimer
Ces biens peuvent aussi vous intéresser
Vendu
Échirolles (38130)

Appartement ÉCHIROLLES T1bis 30,42 m²

Vendu
Grenoble (38100)

Appartement Grenoble duplex T2 27,52 m²