Poisat (38320) À LOUER À POISAT: T2 49,6 m² avec GARAGE

Réf : GLP03568 852,60 €

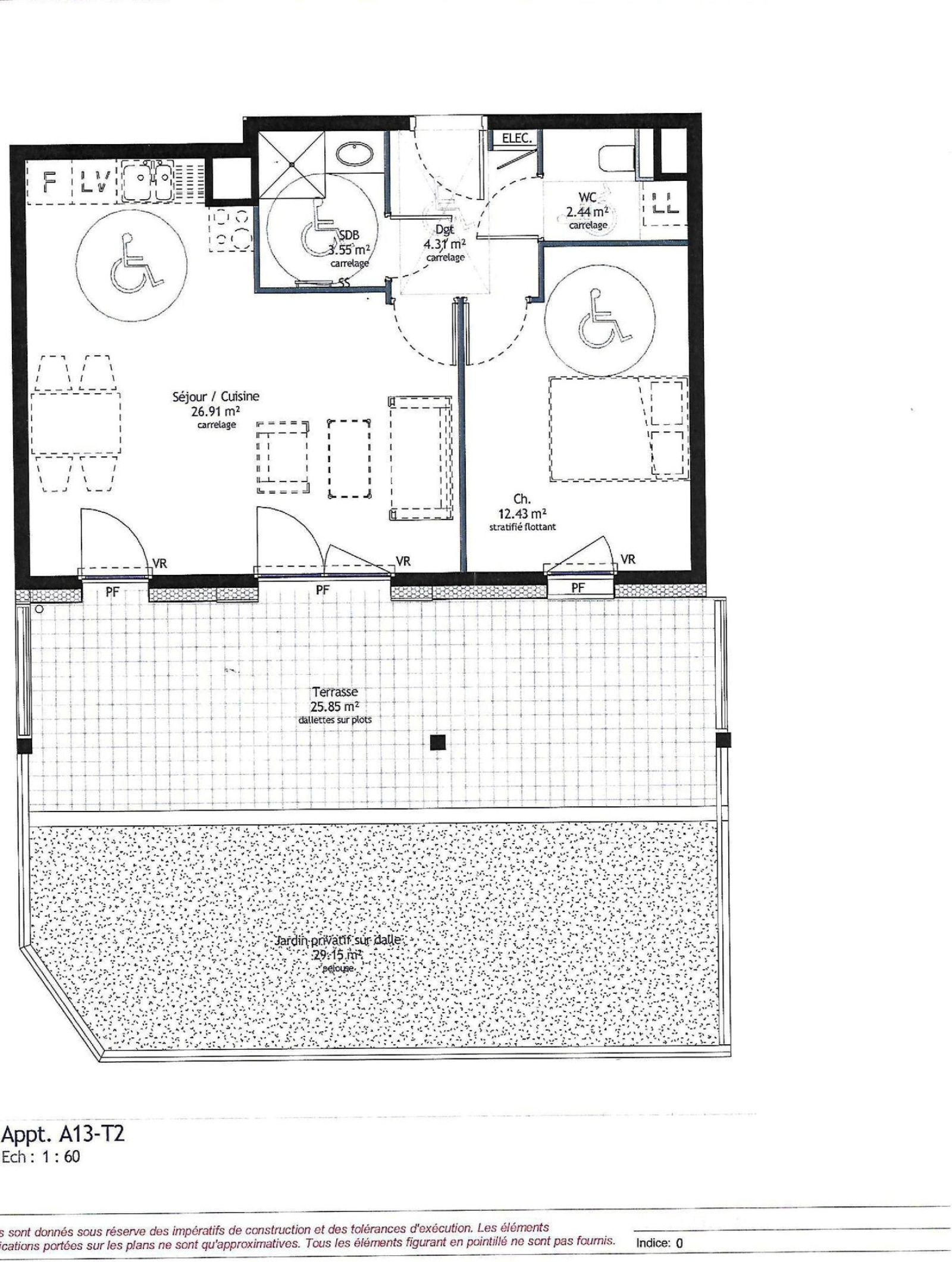
Résidence Le Domaine du Chêne avenue P.Mendès-France. En RDC de cette résidence de 2013 parfaitement sécurisée, magnifique 2P+cuisine ouverte équipée en excellent état. L'espace séjour/cuisine équipée de 26,9 m² donne accès à une terrasse Sud-Ouest de 25 m², prolongée par un jardinet de 29 m². La chambre de 12,4 m², équipée d'un placard, donne également accès à la terrasse. Volets roulants électriques. GARAGE avec porte motorisée. DISPONIBLE le 30 SEPTEMBRE. Loyer net mensuel: 727,60 €. Charges mensuelles: 125 € (eau froide, eau chaude et chauffage pour 110 € et taxe d'ordures ménagères pour 15 €). Dépôt de garantie: 727,60 €. Honoraires agence: 527,87 € TTC.

TRAD_SIROCCO_Caracteristique Valeurs
Code postal 38320
Surface habitable (m²) 49,65 m²
Nombre de chambre(s) 1
Nombre de pièces 2
Meublé Non renseigné
TRAD_SIROCCO_Caracteristique Valeurs
Nb de salle d'eau 1
Mode de chauffage Autre
Type de chauffage Au sol
Format de chauffage Collectif
Interphone OUI
Terrasse OUI
Nombre de garage 1
Année de construction 2013
TRAD_SIROCCO_Caracteristique Valeurs
Loyer CC* / mois 852,60 €
Dont état des lieux Non renseigné
Dépôt de garantie TTC 703 €
Charges locatives (provision donnant lieu à régularisation annuelle) 125 €
DPE GES
DPE ANCIENNE VERSION
  • Commerces et santé
  • Loisirs
  • Ecoles
  • Transports
  • Pratique

* CC : Charges comprises

Nos outils

Imprimer
Rez de chaussée
entrée 4.31 m²

séjour 26.91 m²

cuisine ouverte. PF sur terrasse

terrasse 25.85 m²

jardin 29.15 m²

Chambre 12.43 m²

Placard/penderie. Accès terrasse.

toilettes 2.44 m²

Branchement LL

salle de douche 3.56 m²

cabine douche

garage 15.68 m²

n°A2

Ces biens peuvent aussi vous intéresser
Loué
Brié-et-Angonnes (38320)

T2 duplex meublé 50 m2