Page suivante
Page précédente
Jarrie (38560)

Maison 5 pièce(s) 3 chambre(s) 200 m²

1450 m²
2
5
399 000 €
Réf SVMA10020439

LES CHABERTS - Maison d'architecte de 210 m2 construite en 1975 et indépendante sur son terrain arboré de 1.450 m2. Orientation S/O.

- Maison parfaitement entretenue (ravallement, toit, double vitrage PVC blanc, volets roulants éléctriques aluminium, climatisation, stote ban, chauffage gaz etc...)

- RDC 105 m2 aménagé : garage 2 voitures + buanderie avec douche / WC + 2 caves + atelier + cuisine d'été extérieure.

- 1er étage 105 m2 : Pièce de vie (29 m2), cuisine indépendante (14 m2), 3 chambres dont 2 avec un point d'eau, SDB, WC et couloirs avec placards.

Taxe foncière 1.811 €.

Bilan énergétique

Diagnostics énergetiques
A propos de ce bien Caractéristiques de ce bien
  • Surface 200 m²
  • carrez 105 m²
  • terrain 1 450 m²
  • séjour 30 m²
  • 3 chambre(s)
  • construit en 1975
  • cuisine séparée (équipée)
  • Chauffage individuel : radiateur (gaz)
  • 2 garage(s)
  • 3 parking(s)
  • exposition Sud-Ouest
  • 2 niveau(x)
  • vue Montagnes
  • terrasse
  • arboré
  • piscinable
  • visiophone
  • interphone
  • accès handicapé

Composition

Composition de ce bien

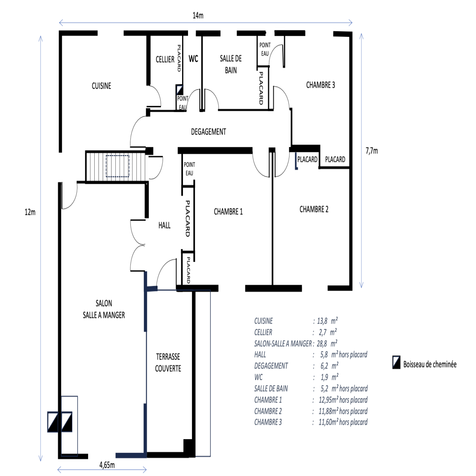
Etage 1

  • cuisine 13.80 m²
  • cellier 2.7 m²
  • salon/sejour 28.80 m²
  • hall 5.8 m²
  • dégagement 6.2 m²
  • WC 1.9 m²
  • salle de bain 5.2 m²
  • chambre 12.95 m²
  • chambre 11.88 m²
  • chambre 11.60 m²

Rez-de-chaussée

  • garage 33 m²
  • cave 11.34 m²
  • cave 13.5 m²
  • atelier 17.60 m²
  • buanderie 17.32 m²

Financier

Informations financières
Prix de vente 399 000 € Les honoraires d'agence seront intégralement à la charge du vendeur

Autour du bien

Découvrez le quartier

Simulation

Calcul des mensualités
* Champs obligatoires
SCH Immobilier & Associés Agence