Page suivante
Page précédente
Grenoble (38100)

Appartement 1 pièce(s) 27.52 m²

1
Réf 062638
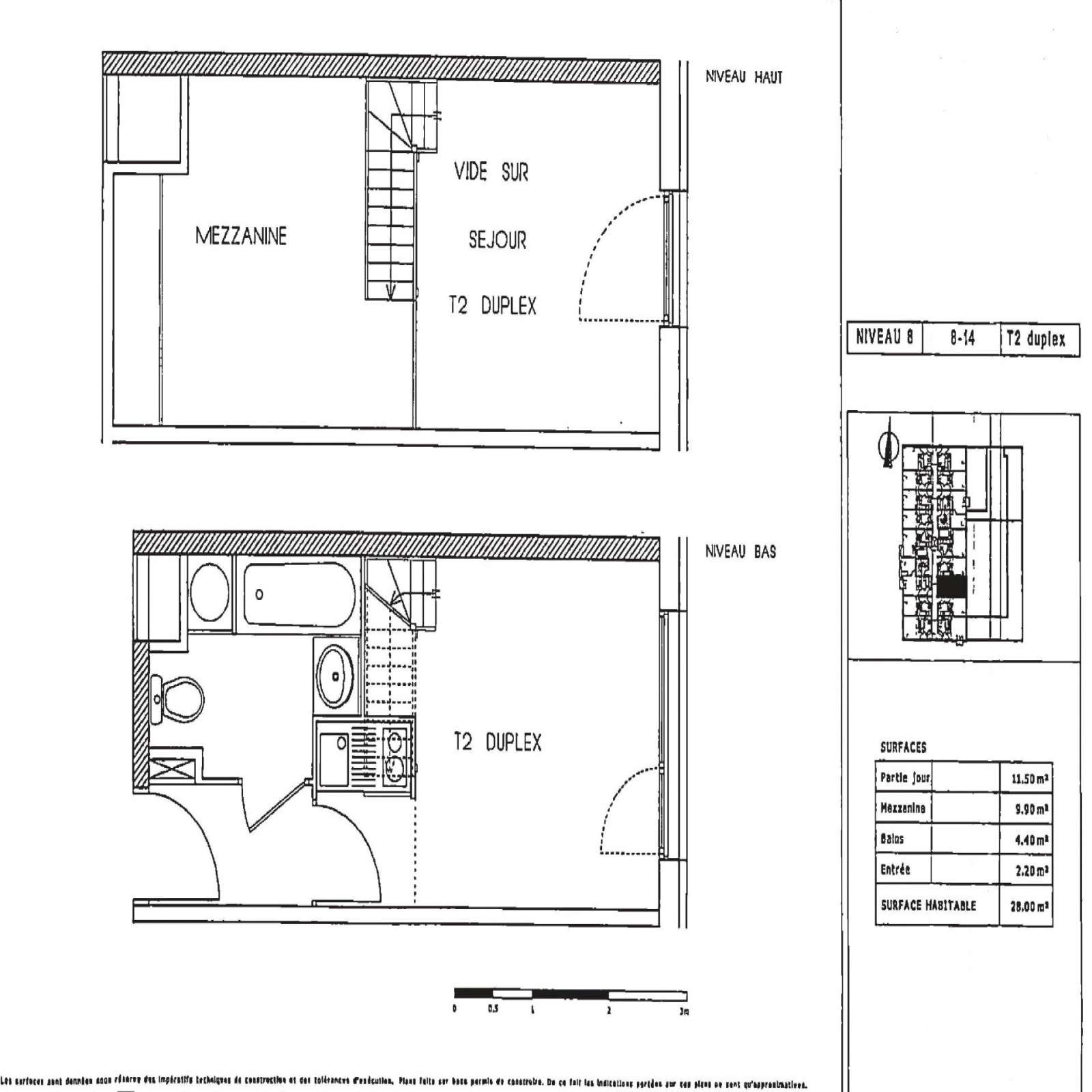
Votre agence 4% Immobilier Eybens vous propose à la vente un duplex T2 loué en LMNP (location meublée non professionnelle) avec un loyer annuel garanti de 3004 €. Résidence Appartéa Grenoble, rue Maurice Dodero, exploitée par Goelia. Bail commercial jusqu'à fin septembre 2025. L'appartement se compose d'une entrée, d'un séjour avec kitchenette équipée, d'une salle de bains avec baignoire et WC et d'un couchage en mezzanine.

Bilan énergétique

Diagnostics énergetiques
A propos de ce bien Caractéristiques de ce bien
  • Surface 27,52 m²
  • carrez 27,52 m²
  • 1 salle(s) d'eau
  • construit en 2007
  • kitchenette
  • 2 niveau(x)
  • 8ème étage

Composition

Composition de ce bien

Rez-de-chaussée

  • Cuisine
  • salle de douche
  • toilettes

Financier

Informations financières
Les honoraires d'agence seront intégralement à la charge du vendeur  
Charges 71 €
Taxe foncière annuelle 358 €

Autour du bien

Découvrez le quartier

Simulation

Calcul des mensualités
* Champs obligatoires
SCH Immobilier & Associés Agence