Page suivante
Page précédente
Bernin (38190)

Appartement 3 pièce(s) 2 chambre(s) 62 m²

1
Ascenseur
1
CC*
Réf SLAP10010859

Libre le 01 JUILLET 2025

Au sein de la résidence “Villa Dauphine, cœur de village” livrée en 2021 beau T3 de 62 m2 avec grande terrasse de 10 m2 bien exposée. Au calme avec vue dégagée sur le jardin et les montagnes. Entrée et dégagement, placard, séjour avec cuisine, 2 chambres, SDE et WC.

Standing, porte blindée, digicode et local à vélo. Grande terrasse de 10 m2. Très lumineux avec baies vitrées double vitrage. Cuisine et SDB équipées. Accès aux personnes à mobilités réduite (PMR). Garage fermé en R-1 avec accès directe par l’ascenseur. Proche des commerces, des accès routiers et des transports en commun.

Loyer 935 € (dont 80 € de charges). Dépôt de garantie 855 €. Honoraires 673,20 €.

GARANTIE VISALE ACCEPTÉE.

Le montant du revenu net mensuel doit correspondre au minimum à 3 fois le montant du loyer avec charges. Nous vous remercions par avance de privilégier un premier contact par mail.


ATTENTION : Le bien est soumis à plafond de ressources (*) dans le cadre de la loi PINEL : Déclaration revenus N-1 et N-2 : MONTANTS MAXIMUM DE RESSOURCES en 2024

- Personne seule 35.825 €

- Couple 47.842 €

- Couple ou Personne seule + 1 personne à charge 57.531 €

- Couple ou Personne seule + 2 personnes à charge 69.455 €

Bilan énergétique

Diagnostics énergetiques
A propos de ce bien Caractéristiques de ce bien
  • Surface 62 m²
  • carrez 62 m²
  • séjour 24,69 m²
  • 2 chambre(s)
  • 1 salle(s) de bain
  • construit en 2020
  • cuisine américaine (équipée)
  • Chauffage individuel : radiateur (gaz)
  • 1 garage(s)
  • exposition Sud-Ouest
  • 4 côté(s) mitoyen(s)
  • 1 niveau(x)
  • 1er étage
  • 4 étage(s)
  • ascenseur
  • vue Jardin et montagne
  • visiophone
  • interphone
  • accès handicapé

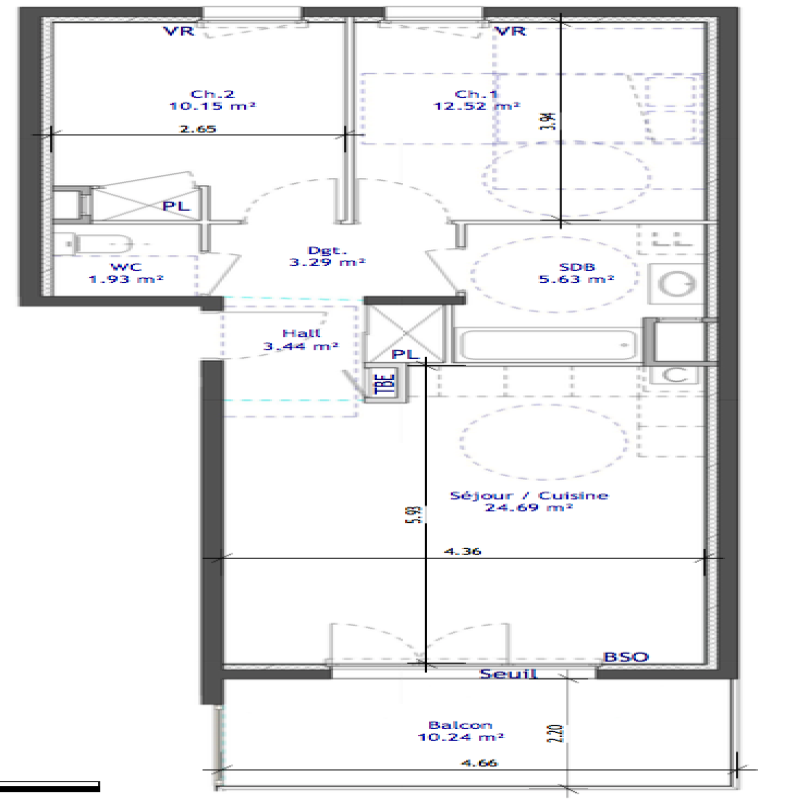
Composition

Composition de ce bien

Etage 1

  • Séjour / Cuisine 24.69 m²
  • chambre 12.52 m²
  • chambre 10.15 m²
  • Hall + Pl 3.44 m²
  • entrée 3.29 m²
  • WC 1.93 m²
  • balcon 10.24 m²
  • salle de bain 5.63 m²

Financier

Informations financières
Dont état des lieux Non renseigné
Dépôt de garantie TTC 780 €
Charges locatives (Previsionnelles mensuelles les avec regularisation annuelle) 80 €

Autour du bien

Découvrez le quartier
SCH Immobilier & Associés Agence

* CC : Charges comprises